Redeemer Church Additions and Renovations

Jackson, Mississippi

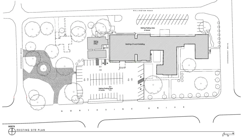
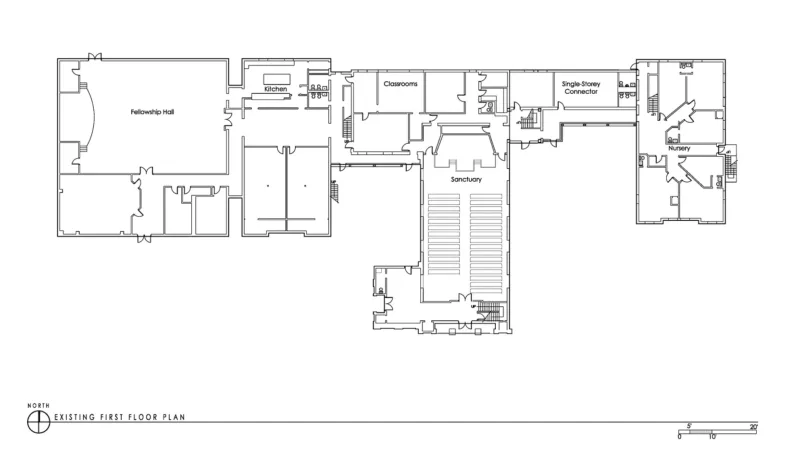
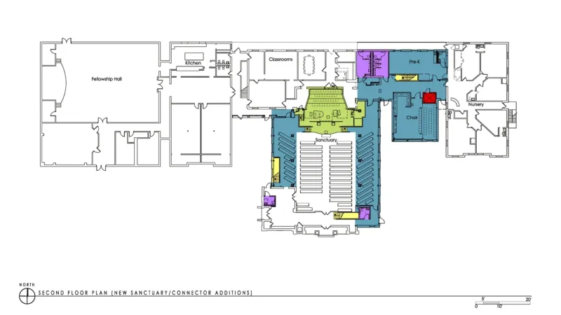
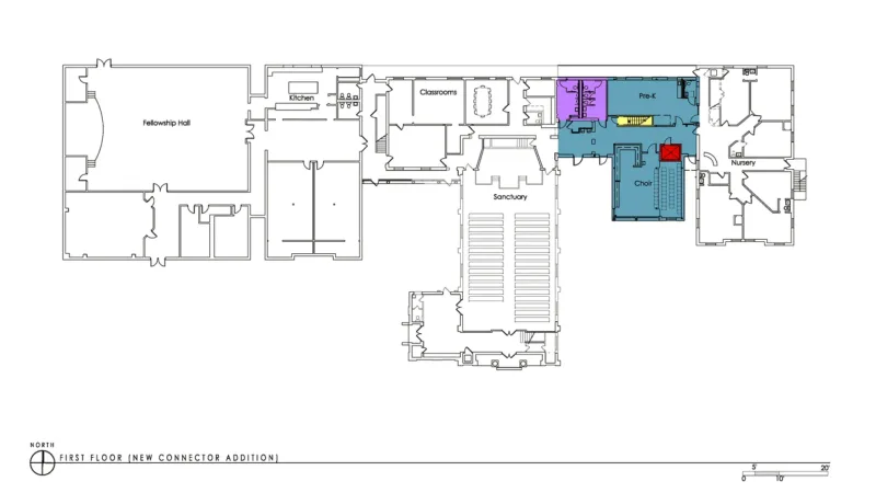
Redeemer Church, a multi-ethnic Presbyterian church with a mission for ministering to a transitional Jackson neighborhood, purchased a fifty-year-old church property in 2004. Massive church growth necessitated enlarging the existing sanctuary and ancillary spaces of the complex to better serve the growing membership. Funding was limited, and a careful feasibility study was required for modifying the sanctuary (approximately doubling existing capacity) and its support functions, utilizing existing structure and major elements of the building as anchors for the expansion elements. A two-storey connector addition was designed to replace an inefficient existing single-storey connector, including code improvements, new elevator, restrooms, classroom, conference, and choir space.

Completed 2012
Full-size Image